
Ort
Buxheim
Bauherr
Geiger
Kategorie
Wohnen
Fertigstellung
Genehmigt 2024
Leistungsphase
1-4
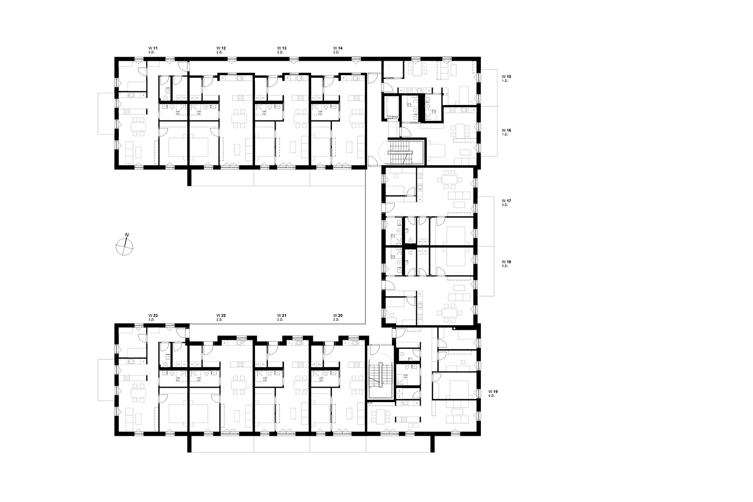
Neben der historischen Kartause in Buxheim, sind 36 neue Wohneinheiten geplant, von behaglichen Ein-Zimmer-Appartements bis zu großzügigen Vier-Zimmer-Wohnungen.
Anstelle des alten Bauernhofs wird eine moderne Seniorenresidenz mit Satteldach, verputztem und gedämmtem Ziegelmauerwerk sowie einem Holzdachstuhl gebaut.




Ein ruhiger Innenhof bietet den Bewohnern einen geschützten Ort der Entspannung.
Alle Wohnungen sind barrierefrei und darauf ausgerichtet, die Lebensqualität der Bewohner zu unterstützen.

Jeckle Hof wurde nach dem Energiestandard KFW 55 EE geplant und ist aufgrund seiner effizienten Wärmedämmung und regenerativen Heizanlage ein Effizienzhaus mit besonders niedrigem Energieverbrauch.
.

